Referencer - Fra skitseforslag til færdigt byggeri
Her på siden er samlet en række ekspempler på projekter jeg har udarbejdet gennem årene.
Ved at klikke på de enkelte referencer kommer der flere billeder frem fra projekterne.
Sommerhus Bondes Bakker
- Myndighedstegninger
- Ansøgning om byggetilladelse og færdigmelding
- Varmetabsberegning
- Kunden har selv leveret skitseforslag
Dobbelthus - Sandstræde
- Skitseforslag til dobbelthus
- Fokus på udnyttelse af udsigt
- Fokus på rationelt investeringsbyggeri
Villa Byhøjtoften
- Skitseforslag
- Myndighedsprojekt
- Detajlprojekt
- Energiramme
- Færdigmelding
- Opført som lavenergibyggeri A2020
- Opført til salg
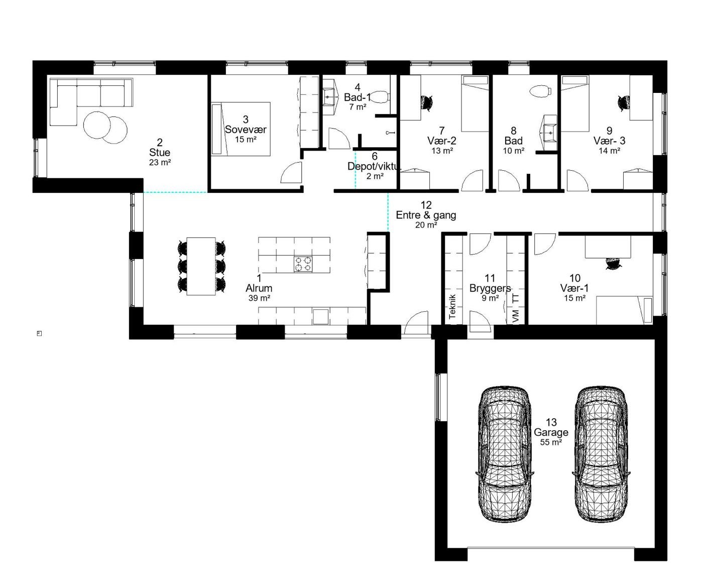
Villa U & S 1
- Skitseforslag
- Myndighedsprojekt + ansøgning
- Detajlprojekt
- Færdigmelding
- Energiramme + Dagslysberegning
- Fokus på privatliv på hjørnegrund i nybyggerkvarter
- Fokus på store, funktionelle fællesrum
Det buede hus
- Skitseprojekt
- Myndighedsprojekt og ansøgning
- Beregninger
- Lavenergibyggeri
- Nyfortolkning af gård på landet
- Fokus på dagslys og udsigt
- Fokus på på ny udsigt fra hvert rum
- Fokus på materialer
Jernbanegade - 41 lejligheder
- Skitseforslag
- Oplæg til lokalplan
- Myndighedskontakt vedr lokalplan
- Løbende rådgivning under projektering og opførsel
- Bynære, ældrevenlige lejligheder
- Gedigne materialer
Referencer - Energi og bæredygtighed
Herunder kan ses eksempler på typiske opgaver hvor jeg har leveret rådgivning om energi, dagslys og bæredygtighed.
Samson Agro, produktion og administration, Viborg
- Energirammeberegning
- LCA beregning
- 6000 m²
- Projektet er udført som underrådgiver for AK2 Byggerådgivning ApS
- Fotocredit: Samson Agro
Butik + bolig, Roskildevej, Rødovre
- Energirammeberegning
- 2500 m² lejligheder - 29 stk
- 1200 m² dagligevareforretning
- Projektet er udført i samarbejde med AK2 Byggerådgivning ApS og Ole Ibsen A/S
- Projektet er tegnet af Arkitema
De Grønne Porte, Egedal
- Energirammeberegning
- Lavenergiklasse
- Ny bolig karré
- 11680 m² blandet bolig og erhverv
- Projektet er udført i samarbejde med AK2 Byggerådgivning ApS og Arkitektfirmaet Andreas Ravn
Privat villa, Them
- Energirammeberegning
- 500 m² familiebolig
- Arkitekt Atelier Lise Juel
- Fotocredit Jens Lindhe - bragt med tilladelse fra arkitekten























































































